Vroon­stal­le­dries in Wondelgem krijgt grondige opknapbeurt

De wandelpaden en parktoegangen worden vernieuwd en er komen extra banken. In een latere fase wordt ook de speelzone onder handen genomen.

De Vroonstalledries in Wondelgem

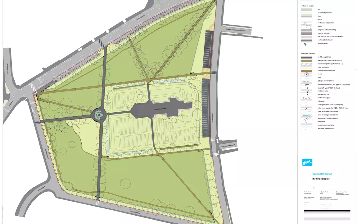
De Vroonstalledries in Wondelgem krijgt vanaf januari een grondige opknapbeurt. De wandelpaden en parktoegangen worden vernieuwd en er komen extra zitbanken. In een latere fase wordt ook de speelzone met houten schaapjes onder handen genomen. Jonge Wondelgemnaars kunnen daarvoor hun voorkeur meegeven.

De Vroonstalledries is een historisch park rondom de kerk van Wondelgem dat op de inventaris onroerend erfgoed staat. Er staan heel wat oude bomen, zoals de Amerikaanse eik naast het monument voor de gesneuvelden die in 1920 werd geplant als vrijheidsboom, of de paardenkastanje aan de Morekstraat die in 1930 werd geplant ter gelegenheid van het 100-jarig bestaan van België.

Het park krijgt vanaf januari een grondige opknapbeurt. Zo worden de wandelpaden vernieuwd en rolstoeltoegankelijk gemaakt, worden de parktoegangen veiliger en overzichtelijker en komen er extra zitbanken en afvalkorven. Rondom het recent gerestaureerde oorlogsmonument komt er meer plaats voor kleurrijke, sierlijke planten.

In een latere fase, rond eind 2026, willen we ook de speelzone met houten schaapjes onder handen nemen. Die is aan vernieuwing toe. Jonge Wondelgemnaars zullen daarvoor een voorkeur kunnen meegeven, daarna bekijken we wat er mogelijk is in dit beschermde landschap.

Bram Van Braeckevelt, schepen van Natuur en Groen

Er wordt ook onthard: twee paden zonder historische betekenis verdwijnen. Zo krijgen de boomwortels van de oude bomen en de natuurlijke vegetatie meer plaats. Tot slot zullen bestuurders aan de noordzijde van de kerk voortaan evenwijdig aan de straat parkeren, dat is veiliger. Boomstammen markeren de parkeerzone.